Deze woning combineert een geheel van klassiek moderne toetsen.
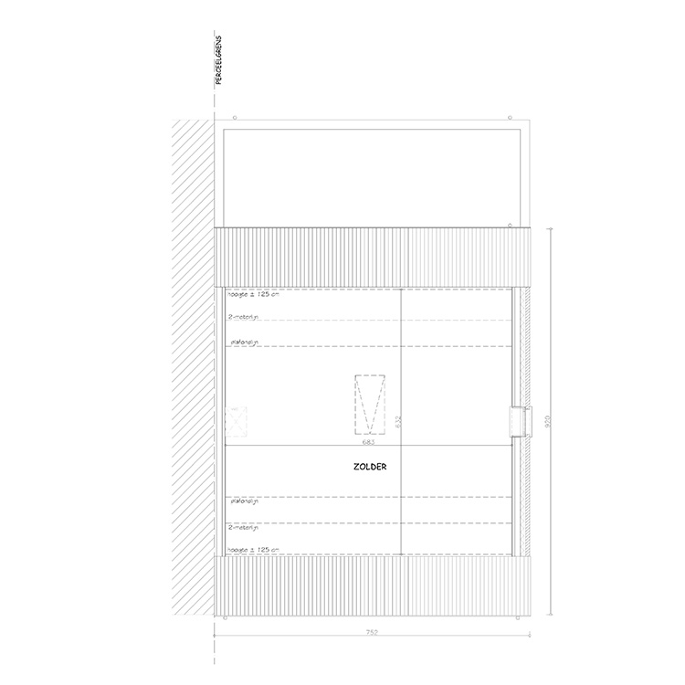
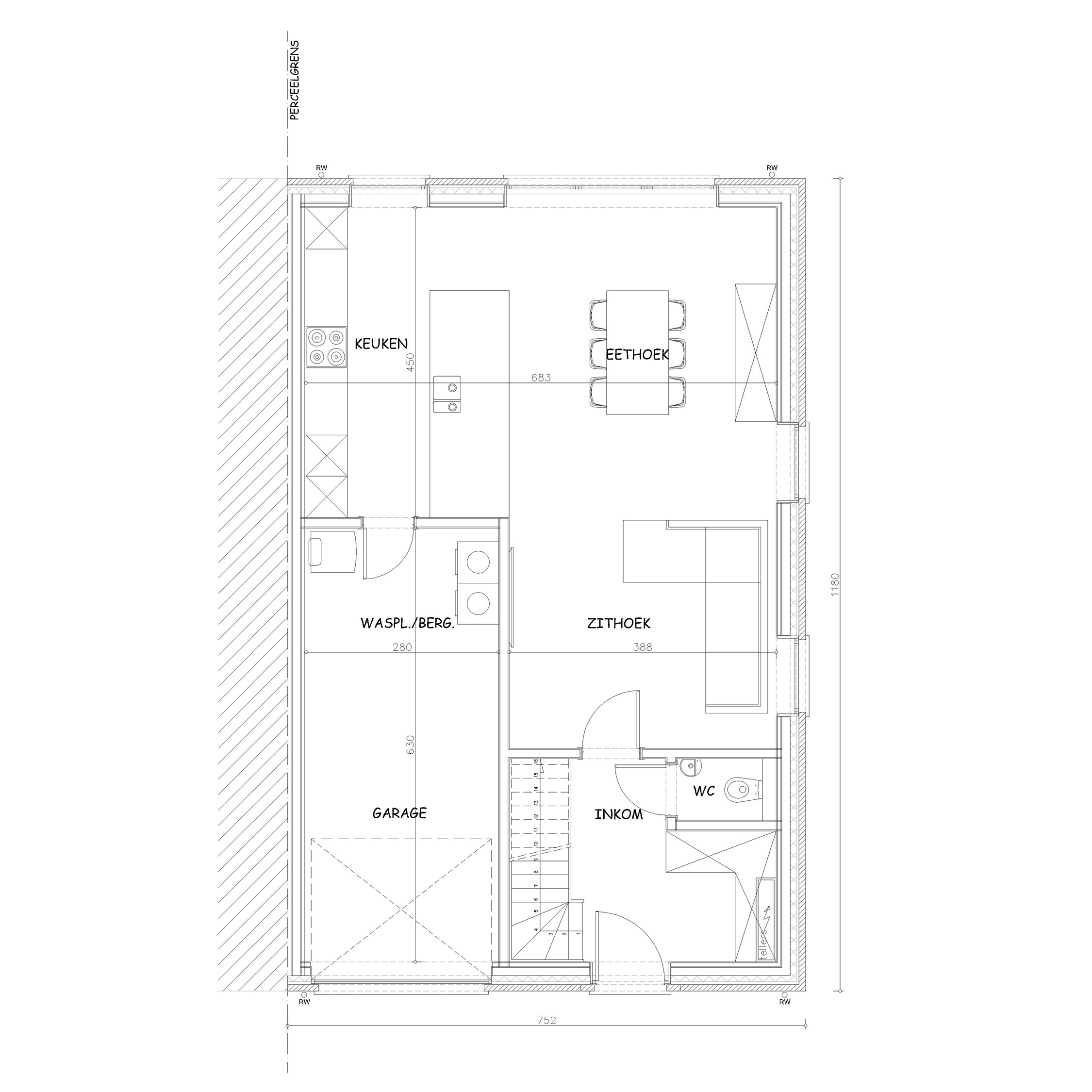
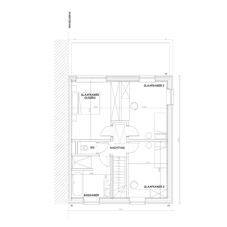
De woning heeft een praktische invulling van een gezinswoning voorzien van alle modern comfort :
De start van iedere realisatie begint met een verkennend gesprek waarbij de bouwadviseur aandachtig luistert naar de woon- en leefgewoontes van de bouwheer en gezin. Doorheen ons meer dan 45 jaar bestaan hebben we de woon- en leefgewoontes zien evolueren in België: de huidige en verwachte woonbehoeften hebben we vertaald in een vernieuwd inspiratie woning portfolio. Laat U ook inspireren door nieuwe ideeën inzake gevelbekleding, vernieuwend én tijdloos.
Ontdek onze andere inspiratiewoningen op de overzichtspagina.
