Sibomat S1 Moderne Bungalow Inspiratie

Laten we starten met een misverstand uit de wereld te helpen. Ook al is Sibomat al meer dan 45 jaar koploper in houtskeletbouw, de bungalows die wij bouwen zijn geen houten huizen in de natuur. Het zijn moderne gelijkvloerse woningen die ideaal zijn om ook toekomstgericht te wonen.

 

Bereikbaar en toegankelijk

Bij een bungalow bevinden alle ruimtes zich op de begane grond. Daarom is dit type gelijkvloerse woning geschikt voor vrijwel elke levenssituatie. Alleenstaand, een jong gezin of ouder koppel: een bungalow groeit met u mee. Dankzij het gelijkvloerse grondplan zijn er heel wat mogelijkheden, ook wanneer uw levenssituatie verandert.

Bij rolstoelgebruikers of oudere stellen die een bungalow bouwen, valt letterlijk een last van de schouders. Alle ruimten zijn immers optimaal bereikbaar en toegankelijk zonder in te boeten aan wooncomfort.

 

Ruimte voor groei

Bij een bungalow kan ook perfect aangebouwd worden of eventueel zelfs een extra verdieping geplaatst worden. Daarom kan dit ook een ideale starterswoning zijn voor jonge gezinnen. Wat gespaard of meer ruimte nodig? Dan kan er bijgebouwd worden en evolueert de woning mee met uw gezinssituatie.

 

Uitgekiend grondplan

Een doordachte indeling is bij elke woning een must, en dat is niet anders bij een bungalow. Een slim ingedeeld grondplan draagt niet alleen bij tot een aangename leef- en woonervaring, maar het heeft ook een impact op het ecologische aspect van uw woning.

Sibomat S1 Inspiratiewoning
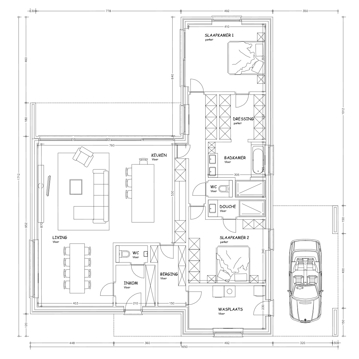
Sibomat S1 Moderne Bungalow Grondplan
Sibomat T5 Inspiratiewoning
Sibomat inspiratiewoning grondplan T5 gelijkvloers
Sibomat T9 Inspiratiewoning
Sibomat inspiratiewoning grondplan T9 gelijkvloers

Onze inspiratiewoningen bieden diverse voorbeelden van moderne bungalowmodellen met 2 of 3 slaapkamers, ruime leefruimtes, open keukens, badkamers met aanpalende dressing en garages.

Het gelijkvloerse ontwerp van deze woningen zorgt voor een royaal ruimtelijk gevoel, met veel natuurlijke lichtinval dankzij de omringende tuinen.

Heeft u interesse in een energiezuinige, gelijkvloerse woning in houtskeletbouw? Neem dan contact met ons op om de verschillende mogelijkheden te bespreken.

Ontdek onze inspiratiewoningen

Bouwplannen? Laat u inspireren door onze talrijke realisaties en inspiratieplannen.