Uw hoofd zit vol ideeën. Een open keuken, een rustig bureau, voldoende berging en liefst veel licht in de leefruimte. Maar op papier moet alles logisch passen: ruimte, licht en looplijnen.
Een plattegrond huis tekenen hoeft niet perfect te zijn. Een eerste schets is er net om te schuiven en bij te sturen. U ziet meteen of de gang te smal is, waar de trap best komt en of uw leefruimte klopt met meubels erbij. Dat maakt het gesprek met uw architect of bouwpartner veel concreter.
In dit artikel krijgt u een duidelijke aanpak in 6 stappen, plus de meest gemaakte fouten en enkele gratis tools. U kunt ook ons gratis A4-PDF sjabloon op schaal 1:100 downloaden, met raster en meubel-uitknipsels. Zo start u zonder gedoe.
Bij Sibomat bouwen we sinds 1979 sleutel-op-de-deur woningen, met focus op houtskeletbouw en doordachte plannen. Een goede voorbereiding geeft rust. Pak dus een potlood en begin.
Voor vergunningen en uitvoeringsplannen is er meestal een architect nodig. Maar een eigen schets maakt uw wensen concreet en versnelt elk gesprek.
Dit levert u meteen op:
Wilt u de financiële kant meteen meenemen? Lees ook de kostprijs van een huis bouwen. Een slimme plattegrond helpt om keuzes te maken.
Voor de meeste starters is 2D de beste start. U ziet meteen afstanden, deuren en looproutes. 3D wordt interessant zodra uw indeling vastligt. Dan helpt het om lichtinval en sfeer te beoordelen.
Onze tip: maak eerst uw 2D-plattegrond correct (op schaal, mét meubels). Zet hem daarna om naar een 3D-tool als u varianten wil vergelijken of uw interieur wil testen.
Volg deze volgorde. Dan werkt u van groot naar klein, en vermijdt u dubbel werk.
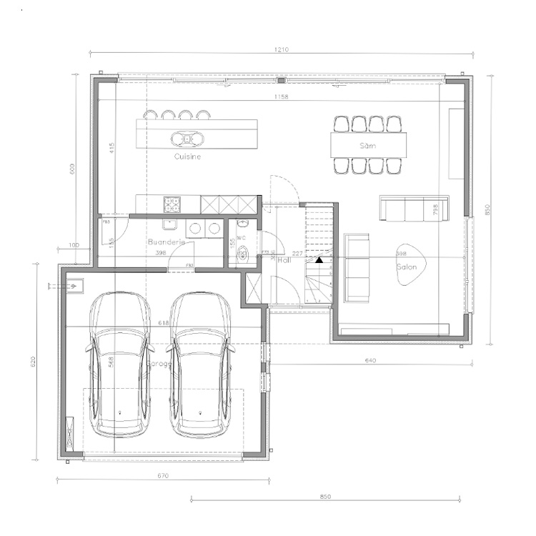
Voor een woning werkt schaal 1:100 het meest praktisch: 1 cm op papier is 1 m in werkelijkheid. Print of teken op A3. Noteer het noorden (N). Maak een korte wensenlijst: slaapkamers, bureau, wasplaats, berging, garage en eventueel een praktijkruimte.
Hebt u al bouwgrond? Noteer perceelbreedte en oriëntatie. Waar ziet u de tuin, het terras en de oprit? Zet ook uw ‘niet-onderhandelbaar’: bijvoorbeeld een gelijkvloerse douche, extra berging of een bureau voor twee personen.
Tips:
Start met de buitencontour: lengte, breedte en grote uitspringers. Teken buitenmuren als dubbele lijn en hou muurdikte in gedachten (richtwaarde 40-45 cm).
Hou de vorm zo helder mogelijk. Een compacte vorm is vaak efficiënter én makkelijker in te delen. Te veel hoekjes zorgen sneller voor verloren ruimte en ingewikkelde dak- of geveldetails.
Tips:
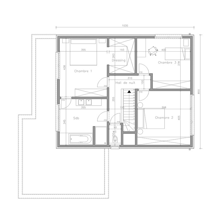
Begin met de vaste zones: inkom, trap, berging/techniek en keuken. Leg daarna leefruimte, eetruimte en bureau vast. Hou natte zones (keuken, badkamer, wasplaats) bij elkaar. Dat maakt leidingen plaatsen eenvoudiger.
Let op loopruimte: gangen zijn comfortabel vanaf 100–120 cm. Denk in meubels, niet alleen in m². Een leefruimte “op papier” is pas goed als ze ook werkt met zetel, tafel en doorgang.
Tips:
Plaats eerst de trap. Een comfortabele trap is vaak 90–100 cm breed en vraagt ruimte boven én beneden. Zorg dat u niet uitkomt in een nauwe passage of recht op een deur.
Plaats daarna deuren en ramen. Denk aan draaicirkels, inkijk en licht. Grote ramen horen waar u leeft: living, eetruimte en keuken. In slaapkamers kan u vaker kiezen voor gerichter licht en meer privacy.
Tips:
Teken meubels op schaal: zetel, eettafel, bed, kasten en keukenopstelling. Dat is de snelste controle op comfort.
Richtwaarden: 90 cm rond de eettafel, 60–80 cm rond een bed, 100–120 cm tussen twee kastenrijen in de keuken. Vergeet ook vestiaire, voorraad en poetskast niet. Dat zijn vaak de plekken die later ‘ontbreken’.
Tips:
Zet buitenmaten en de belangrijkste binnenmaten (leefruimte, trapzone, gangen, badkamer, berging). Noteer eventueel m² per ruimte.
Label elke ruimte en voeg korte opmerkingen toe: ‘schuifraam naar terras’, ‘vestiaire’, ‘berging’. Maak daarna versie 2. Kleine verschuivingen kunnen veel verbeteren.
Tips:
Deze regels zijn geen wet, maar ze helpen u om sneller tot een logisch plan te komen.
Zoekt u inspiratie voor indelingen per stijl?
Bekijk onze bouwstijlen.
Structuur, stabiliteit en verdiepingsindelingen vragen expertise. Onze bouwadviseurs en architecten werken uw schets uit tot een professioneel bouwplan, rekening houdend met alle technische vereisten en bouwvoorschriften. U behoudt uw visie, wij zorgen dat het klopt.
Dit zijn de klassiekers die we vaak terugzien in eerste schetsen. U vermijdt ze met één snelle check per punt.
Veel mensen tekenen hun woning op basis van de buitenmaten, maar vergeten dat buitenmuren ook “plaats innemen”. Daardoor lijkt een kamer op papier ruimer dan ze in werkelijkheid wordt. Teken buitenmuren daarom als een dubbele lijn en hou als richtwaarde 40-45 cm aan. Controleer daarna uw binnenmaten opnieuw, zeker in leefruimte en slaapkamers.
Een trap “die net past” voelt vaak krap aan en is minder veilig op lange termijn. Voorzie bij uw eerste schets al voldoende breedte en ruimte boven en onder de trap. Reken best op 90–100 cm trapbreedte en teken ook de trapzone uit als echte oppervlakte, niet als een streep op het plan, zowel op het gelijkvloers als op de verdieping. Zo merkt u snel of uw circulatie logisch blijft.
Een indeling kan perfect kloppen, maar toch donker aanvoelen als ramen en oriëntatie niet meespelen. Zet daarom altijd het noorden (N) op uw plan. Denk vervolgens bewust na waar u overdag licht nodig hebt: in de leefruimte, aan de eettafel en in de keuken. Grote raampartijen plaatst u best waar u leeft, en u bewaart privacy in ruimtes waar dat belangrijk is.
Berging wordt vaak “later nog ergens” ingetekend, maar in de praktijk komt dat meestal neer op te weinig plaats voor technieken, voorraad en poetsgerief. Plan berging en techniek dus vanaf versie 1. Een compacte berging op een slimme plek maakt uw woning rustiger én praktischer. Denk ook aan kleine dingen: vestiaire, wasmand, stofzuiger, vuilbakken en voorraad.
Op papier lijken doorgangen snel oké, maar in het dagelijkse leven wordt het krap met een wasmand, buggy of twee personen die elkaar kruisen. Mik voor gangen op 100–120 cm en test uw plan met deuren en meubels ingetekend. Let zeker op knelpunten bij de trap, het toilet en de overgang van inkom naar leefruimte.
Probleem: sanitair past, beweging niet. Impact: deuren botsen, weinig comfort. Oplossing: teken sanitair op schaal en hou circulatie vrij.
Dit is de fout die het vaakst voor teleurstelling zorgt. Kamers lijken ruim zolang ze leeg zijn, maar zodra de zetel, eettafel of kasten erbij komen, blijkt de loopruimte te krap. Teken meubels daarom altijd op schaal, of gebruik uitknipsels. Check daarna de belangrijkste routes: van inkom naar leefruimte, naar het terras en naar de trap. Als die routes vlot lopen, zit u meestal goed.
Tekent u liever digitaal? Start op papier voor de indeling en gebruik daarna een tool om varianten te testen. Gratis versies zijn vaak beperkt in export en 3D.
Snelle webtool voor 2D-plattegronden, met meubels en eenvoudige 3D-weergave.
Gebruiksvriendelijk als u een nette plattegrond wil en graag met inrichting test.
Sterk voor 3D-sfeer en het testen van inrichting en materialen.
Krachtig voor wie nauwkeurig wil tekenen en 3D wil uitwerken.
Onze aanbeveling: Voor beginners raden we Floorplanner aan: snel en intuïtief. Wilt u fotorealistische renders om aan familie te tonen? Kies RoomSketcher. Gaat u experimenteren met inrichting? Probeer HomeByMe. Heeft u ervaring met 3D-software? Dan is SketchUp Free het meest krachtig.
Met een goede plattegrond staat u sterker in elk gesprek. U kunt sneller keuzes maken over indeling, stijl en budget.
Bij Sibomat vertalen we uw schets naar een professioneel bouwplan. Onze bouwadviseurs berekenen exact wat haalbaar is binnen uw budget, perfectioneren de indeling waar nodig en begeleiden u van eerste idee tot sleuteloverdracht. U houdt de controle, wij zorgen voor de expertise.
Sinds 1979 | 8.500+ tevreden gezinnen | Sleutel-op-de-deur specialist
